Fire Suppression and Detection


Rancho Los Cerritos has taken the necessary steps to protect and preserve the historic site for generations to come.

Hazards to the site are ever-present and come in all shapes and sizes, not the least of which being fire and the destructive properties associated with it. To allow this hazard to exist unchecked would be a great misstep, which we are unwilling to take, as stewards of the Rancho. To that end, we’ve taken steps to implement fire protection across the site. Our ultimate goal is to fully mitigate the risk of fire damage to our historic structures and irreplaceable collections. Currently, no fire detection/notification or suppression measures are in-place to protect RLC facilities or artifacts.

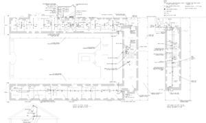
Understanding the importance of fire protection, we took action in 2022. We hired the world-renowned consulting firm, Heritage Fire Protection, which has assessed the site and designed a system for maximal protection. First, was the detection and notification aspect. These are systems that detect fire and notify the fire department of any incidents that occur in the historic Adobe, the Visitor Center and the Cottage. These detection systems utilize a state-of-the-art technique that constantly takes air samples and analyzes them for anomalies. To extinguish a fire in the Cottage or Visitor Center, traditional sprinkler systems will deploy and extinguish the fire. For the historic Adobe, an elevated level of care was necessary. Because of the historic and irreparable nature of the home and its collections, a traditional sprinkler system was determined to be insufficient. Instead, a system that utilizes a gas-propelled water mist was designed. This will ensure that, even in the event of a fire, all collections and the adobe structure will sustain minimal damage from both the fire, and the method by which it is extinguished.

All systems are scheduled to be installed and commissioned in 2023.